
Where Unique Design Creations Ltd Started …
About us
Unique Design Creations Ltd was founded during the pandemic. When our founder, Gemma Smith, was approached to provide contract CAD draughting services to several companies. What began as a temporary solution quickly evolved into a thriving freelance business, built on reliability, precision, and industry expertise.
With over 20 years of experience in the construction, property, and engineering sectors. Gemma brings extensive hands-on knowledge to every project. Unique Design Creations Ltd offers professional CAD draughting services—from one-off drawings to full drawing packages. Tailored to meet the unique requirements of each client.
We pride ourselves on delivering accurate, high-quality CAD layouts to support architectural and building services projects of all sizes.
We currently support a wide range of clients using the latest version of AutoCAD and Revit. Delivering high-quality and reliable draughting services tailored to your specific needs.
Bringing Your Vision to Life
Whether you’re planning a domestic build or a commercial development. Unique Design Creations Ltd is here to support you every step of the way. With extensive experience and full industry qualifications. We work closely with clients from the initial design phase through to planning, review, and the start of construction.
Who We Work With
We proudly collaborate with a diverse portfolio of clients, including:
- Architectural Practices
- Interior Designers (Commercial kitchens, bars, restaurants, offices, and retail spaces)
- Carpentry and Joinery Specialists
- Estate Agents & Property Owners
- Developers
- M&E Contractors, Consultants, and Building Services Engineers
Sectors of Experience
Our team has extensive experience working within a variety of sectors, including:
- Retail
- Residential
- Healthcare
- Offices
- Restaurant
- Education
- Sports Centres
- RAF, MoD, MoJ & DSTL Facilities
- Laboratories
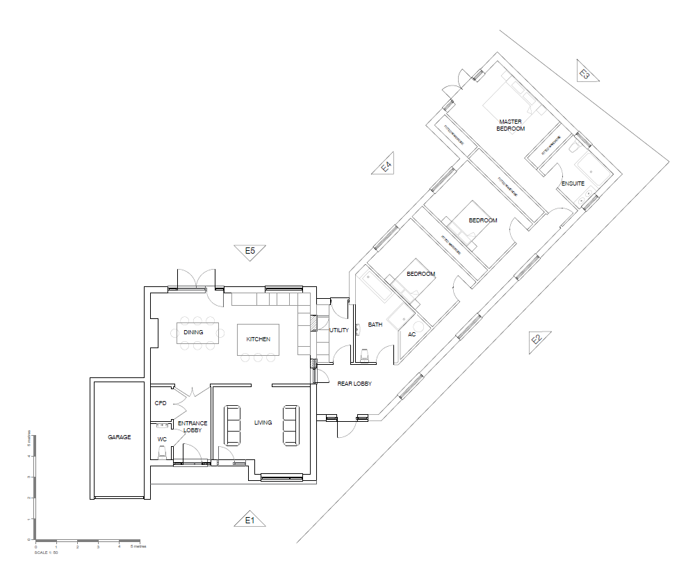
Our CAD Services
We provide a wide range of CAD draughting services, including:
- Existing, Proposed, and As-Built Drawings
- Site Plans
- Floor Plans
- Elevations
- Sections
- General Arrangements
- M&E Arrangements
- Schematics
- General Detailing
- PDF to CAD Conversions
All drawings are tailored to meet client-specific requirements for Planning, Tender, Construction, or Record purposes.
Whether you need a one-off drawing or a full drawing package, we’re here to help. We can take your marked-up drawings and transform them into clean, professional CAD drawings based on your company standards and specifications. We also offer services such as X-Ref cleanups, ready for seamless integration into your drawing packages. Provided as a cost-effective solution to support your company’s productivity.
Working Across Essex and Suffolk
Whether you’re a local architect, developer, or contractor in Essex or Suffolk. We offer flexible and professional support to help you deliver your projects with precision and confidence. Based locally, we pride ourselves on a collaborative approach—co-creating with you. To ensure your ideas and aspirations are translated into clear, workable drawings that bring your vision to life.
If you’re looking for a reliable, experienced CAD partner in Essex or Suffolk, we’d love to hear from you.
Get in touch today via our enquiry form to start your project journey with us.
Thank you for taking the time to look over our website.
Location:
Colchester, Essex
Telephone:
07764 463952
Email:
info@uniquedesigncreations.co.uk