We offer a comprehensive range of design and architectural services for both domestic and commercial properties, including:

Architectural Design & Construction Services
- Refurbishments
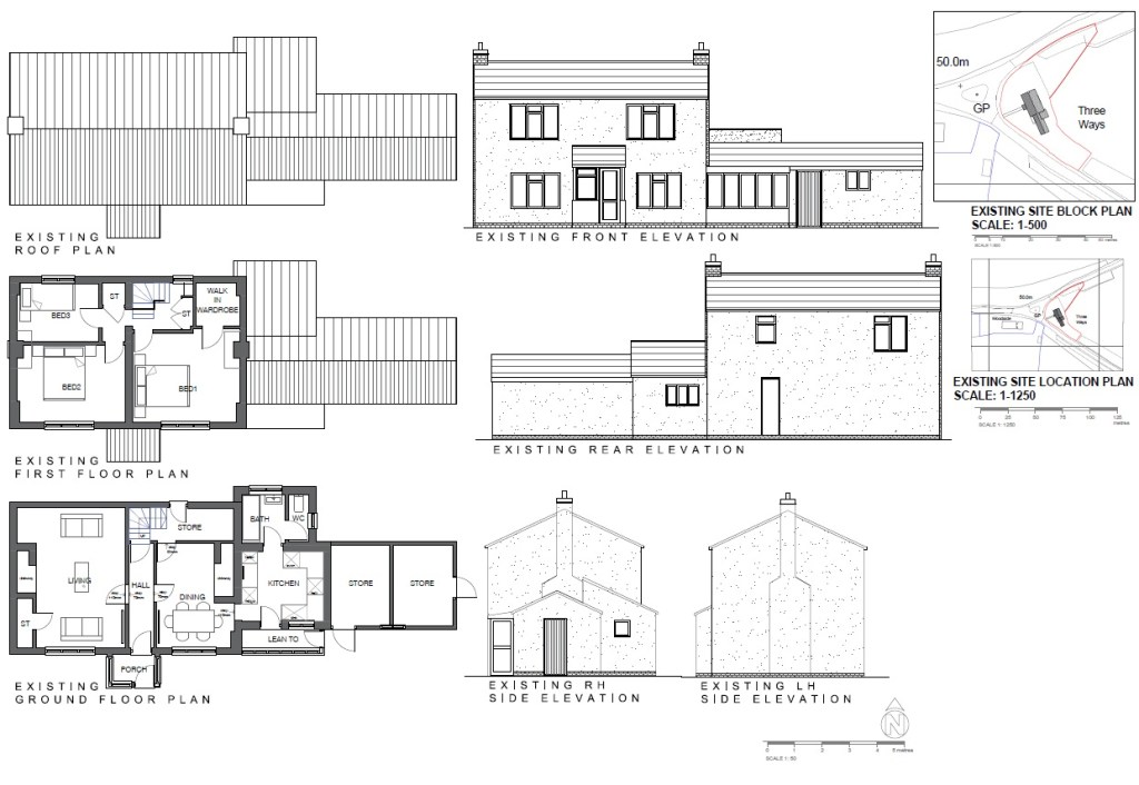
General reconfiguration of internal spaces to improve layout, functionality, and reflect your needs. - Extensions
Assessing the potential of your land to expand and enhance your property’s layout and usability. - Garage Conversions
Transforming garages into functional living or working spaces. - Outbuilding Conversions
Converting small outbuildings for residential or commercial use. - New Build Projects
Full design and support for complete new-build properties

Specialist Design Services
- Restaurant Design
Creative and functional designs tailored for hospitality environments. - Commercial & Residential Kitchen Design
Bespoke kitchen layouts to meet both domestic and commercial requirements. - Office Design
Efficient and inspiring layouts for workplace environments.

Technical & Planning Services
- Internal Alterations & Refurbishments
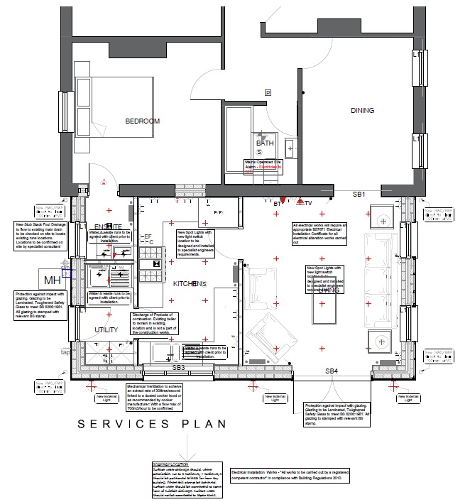
Design and planning for reconfiguring existing internal spaces. - MEP Building Services Layouts
Detailed layouts for Mechanical, Electrical, and Plumbing systems. - MEP Schematic Drawings
Clear schematics to support building services engineering. - 2D Drafting
Including detailed plans and elevations. - 3D Visualisations
Realistic visual renderings to help bring your project to life. - Space Planning
Optimising internal layouts for better use of space. - PDF/Paper to CAD Conversions
Accurate digitisation of your existing plans.

Planning & Compliance
- Planning Applications
Full support with Planning Applications, Outline Applications, Certificates of Lawfulness, and Permitted Development rights. - Building Regulations & Construction Drawings
Technical drawings and specifications for projects with planning approval.

Additional Services
- Design Advice & Sketch Designs
Early-stage ideas and concept development to shape your project vision. - General Arrangement Plans
Detailed layout plans to coordinate your project efficiently.
Contact us today to discuss your project or to find out more about how we can support you.